NEDERLANDS:
Klein huis met veel charme te koop in Dillendorf – perfect voor een klein gezin, alleenstaanden en oudere stellen.
Dit kleine, drempelvrije huis is gebouwd in 1961, voornamelijk in houtskeletbouw, in een rustige woonwijk. De serre is van massief baksteen. De binnenmuren van de spouwmuur zijn geïsoleerd.
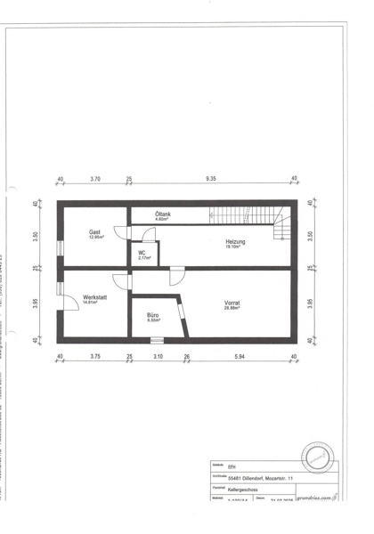
De gehele woonkamer is gelijkvloers, met extra bergruimte in de ruime en deels verwarmde kelder. Twee garages bieden ruimte voor zowel de auto als bijvoorbeeld elektrische fietsen of een motor.
In de afgelopen 20 jaar zijn hier talloze renovaties uitgevoerd:
2005 – Plaatsing van PVC-kozijnen met dubbele beglazing
2010 – Plaatsing van een nieuwe oliegestookte verwarmingsinstallatie
2011 – Vervanging van de elektrische en sanitaire installaties
2016 – Isolatie van de buitenmuren van de kelder; Isolatie van de binnenmuren en het zolderplafond
2021 – Badkamerrenovatie
De energiezuinige renovatie is grotendeels afgerond, zodat u zich volledig kunt richten op het realiseren van de gewenste binnen- en buitenuitstraling.
br> br>DEUTSCH:
Dieses kleine, barrierearme Haus wurde 1961 überwiegend in Holzständerbauweise in einem ruhig gelegenen Wohngebiet errichtet. Die Mauer am Wintergarten ist eine massiv gemauerte Wand. Die Innenräume der Hohlkörperwände sind mit Dämmmaterial versehen.
Der komplette Wohnbereich ist auf einer Ebene, wobei der geräumige und teilweise beheizte Keller zusätzlichen Stauraum bietet. In zwei Garagen findet sowohl das Auto, als auch z.B. die elektrischen Fahrräder oder das Motorrad seinen Unterstand.
Object: EH25562
2005 - Einbau 2-fach verglaster Kunststofffenster
2010 - Einbau einer neuen Ölheizung
2011 - Erneuerung der Elektro- und Wasserleitungen
2016 - Dämmung der Keller-Außen-Wände; Dämmung der Innenwände und Speicherdecke;
2021 - Erneuerung des Badezimmers
Somit ist also die energetische Sanierung bereits weitestgehend erfolgt und man kann sich komplett auf das wunschgemäße Erscheinungsbild von Innen und Außen konzentrieren.
